Booking
蔚南裏備品組合圖-13
蔚南裏備品組合圖-07
蔚南裏備品組合圖-08
蔚南裏備品組合圖-06
蔚南裏備品組合圖-05
房間內頁圖03
房間內頁圖04
set
木心

柏 / Kashiwa / かしわ

平日 $7480│假日 $8780│國定假日 $9780
    雙人房型 (2人) ‧ 15坪 ‧ 超大雙人床

    承載著歲⽉的溫度
    讓⼈⼀踏入便感到放鬆與安⼼。
    「柏」是⼀個讓⾝⼼歸於平衡的空間,也是⼀段將台南的溫度與質感,細緻封存於回憶的旅程。

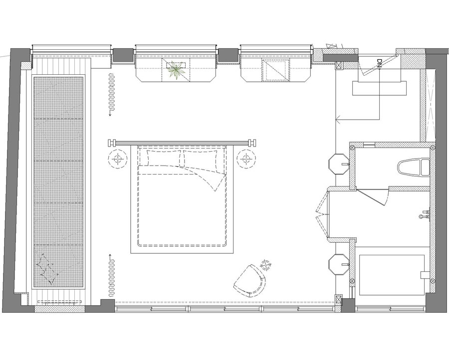
    (圖)房間平面圖
    客房設備Equipment
    • (圖)廁所
    • (圖)15坪
    • (圖)雙人房型
    • (圖)浴缸
    • (圖)淋浴
    • (圖)眠豆腐
    • (圖)le labo
    • (圖)KOHLER
    • (圖)Dyson
    • (圖)Marshall
    • (圖)雀巢膠囊咖啡機
    • WIFI
    • ⼩冰箱
    • 茶具組
    • 獨立浴缸
    • 43" 電視
    • MINI BAR
    • 冷暖氣系統
    • ⼿沖熱⽔壺
    • 鵝毛⽻絨枕
    • 眠豆腐床墊
    • dyson 吹風機
    • NESCAFE膠囊咖啡機
    • KOHLER.免治馬桶
    • LE LABO 洗沐/香氣
    • Marshall 藍芽音響
    住宿須知Guest Information
    ⬢ 為保留老宅原貌,館內無電梯設施。若為年長或行動不便旅客,請留意館內樓層皆需步行通行。

    ⬢ 入住時間15:00–20:00,退房11:00,晚於20:00入住請提前聯繫官方LINE。
    ⬢ 入住請出示身分證、駕照或護照以核對身分,外出請保管好鑰匙與房卡,遺失需付1200元。
    ⬢ 因館內多為老件收藏,較不適合孩童活動,恕不接待12歲以下孩子,敬請見諒。
    ⬢ 房型不可加人或加床,入住人數請依訂房為準,並嚴禁訪客進入。
    ⬢ 依【菸害防制法】本民宿全面禁菸(含電子菸)、禁嚼檳榔及攜帶寵物,嚴禁酗酒、賭博、
    吸毒等違法行為,違者報警處理。
    ⬢ 本民宿22:00後請降低音量,室內禁止烹煮或點蠟燭。違反禁菸將收取清潔費NT$10,000並強制退房。
    ⬢ 使用冰飲請墊杯墊避免損傷家具,請愛惜房內物品(如音響、吹風機),若損壞或遺失需照價賠償。
    ⬢ 衛生紙可投入馬桶,若有設備損壞請主動告知,以免清潔人員受傷,若有服務不周,歡迎提出建議,我們將持續改善。
    ⬢ 訂房完成後,請加入LINE方便聯繫。LINE ID:@waynan22
    ⬢ 為配合政府減塑政策及響應永續旅遊,房內將不再主動提供一次性備品,如有需求請至1F大廳購買。
     
    住宿期間活動Stay Offers
    入住期間加贈旗下餐廳用餐85折優惠
    • (圖)*
    • (圖)*
    • (圖)*
    • (圖)*
    • (圖)*

    更多房型ROOM TYPES

    詳情
    檜 / Hinoki/ ひのき
    木心

    檜 / Hinoki/ ひのき

    雙人房型 ‧ 13坪 ‧ 大雙⼈床
    融入溫潤⽊質調的空間,彷彿能感受到⽣命的澎湃活⼒,在這裡,內外平衡交融,⾝⼼和諧共舞。
    在這片幽靜舒適的隱居之地,你將重新找回⾃我內在的⽣機蓬勃。
    詳情
    松 / Matsu / まつ
    木心

    松 / Matsu / まつ

    雙人房型 ‧ 11坪 ‧ 大雙⼈床
    走進房內,空間沉穩的氣息像⼀⾸低聲吟唱的樂曲,將旅⼈緩緩包裹。
    「松」都是旅途中⼀處靜謐的棲所,將台南的⽇常,化作你記憶中的長情風景。